Choose the Right Resale Unit

If you didn’t get the BTO lottery, that’s just bad luck.

But if you choose to buy a resale unit with a weird layout, that one’s on you HAHA.

Some resale houses are 100% more difficult to design and reno than others.

Especially if you want a chio pinterest instagram worthy house, please look at the floor plan first before buying!

Watch our tiktok channel if you lazy to read.

So today, I got 3 floor plans to show you guys.

All are 4-room flats, and all are from the same estate (wanna guess which one?).

But they have very different “reno potential”.

1) The ‘BTO’ Standard Layout

This is the typical new BTO kind.

A bit boring, nothing fancy but small room for error and usually cannot go wrong.

Most of the time, you just decide:

  • Open or Closed Kitchen?

  • Hack the common room or don’t hack?

Safe choice and predictable, but that’s not a bad thing. Most IDs can work with this easily. Not much to play with, but also not much to regret.

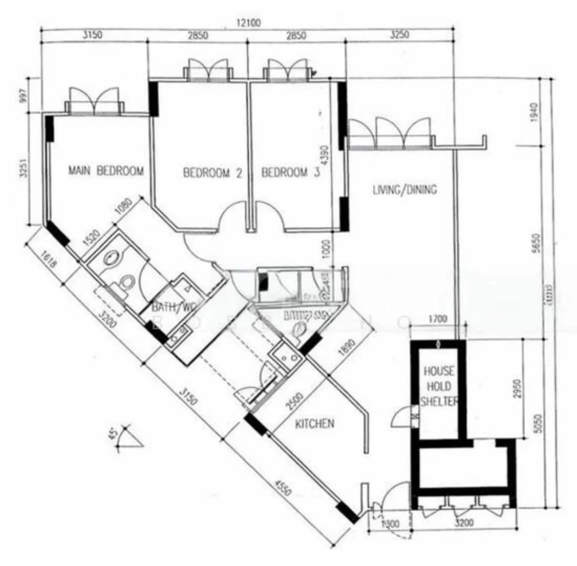
2) The Difficult Layout

Look at this floor plan.

Angled walls, odd corners and a living room that makes your TOA CAH SOH from PSLE feel useful.

Your house is pretty much a triangle.

And that’s the issue.

Last time one of our IDs worked on a similar unit—design, tiling, carpentry all faint.

I mean, there are sooooo many resale houses out there.

If you know this house is more difficult to reno, both from a design and workmanship perspective, then surely it has to be factored into your decision to buy that house or not.

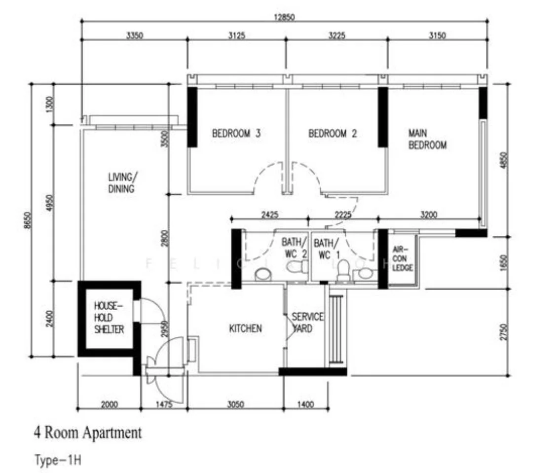
3) The Playground Layout

Now this one?

This is the most fun for sure.

You can hack bedroom 3 to make the living room bigger.

You can swap the living room and put the TV in bedroom 3. Or build a tatami platform at the window ledge area to chill and stargaze.

So many things to play with, and so easy to plan with.

And best part? It’s a square. Easy to design, easy to plan. IDs love this kind of canvas and you will love it too when many of your ideas can be realised due to its sheer flexibility.

Moral of the Story

A) If you’re buying a flat, look at the floor plan, and the “reno potential”. Don’t just see the photos or the price.

B) A good layout makes reno easier, cheaper and way more flexible.

C) Squarish layout generally are most ideal.

Buy the right layout, then come ask for ID or contractor recommendations. Because once you commit to the unit, even the best id can only work within its constraints.

Follow us below to hear more!

If you are looking to shortlist reliable IDs/contractors for your reno, feel free to enquire here, or check out our blog for other important tips!!

Previous
Previous

Dryer vs Steigen

Next
Next

What is Mortar Base, and what should it cost?